成都 · 奥园麓语ONE | 乐悠悠 | 175㎡
Area / 面积:175㎡ Style / 风格:现代简约 Style / 户型:四室两厅 Price / 花费:75w
Designer Style / 类型:全案设计+施工 Designer Agency / 团队:成都宏福樘设计 Address / 地址:成都 · 奥园麓语ONE
Area / 面积:175㎡
Style / 风格:现代简约
Type / 户型:四室二厅
Price / 花费:75w
Designer / 设计师:蒋礼
Design Type / 类型:全案设计+施工
Design Agency / 团队:成都宏福樘设计
Address / 地址:成都 · 奥园麓语ONE
本案是为教师、金融自媒体夫妇与其四岁儿子打造的亲子宅。设计以白、木色为主调,构建出一个纯粹、松弛的基底。其核心并非强烈的风格表达,而是服务于居者本身。通过周全的适童化细节、灵活的布局与充足的收纳,让这个家能安全包容孩子的探索与成长,也悉心呵护家人的互动与陪伴。
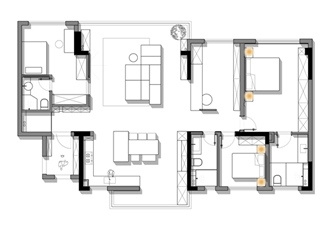
设计改造


设计改造
1. 入户正对卧室调整布局,并释放内部卫生间面积给予玄关增强储物空间
2. 景观、家政阳台纳入,扩充客餐厅使用面积
3. 一间卧室拆除局部墙体,改造为半开放式多功能书房
4. 拆除主卧内部隔墙,释放空间,并将卫生间外移齐平墙面,统一视觉
玄关



客厅











书房








餐厨






儿童房



主卧




卫生间

软装清单

对比图
