成都 · 正荣润锦府 | 谧径漫步 | 137㎡
Area / 面积:137㎡ Style / 风格:现代极简 Style / 户型:四室两厅 Price / 花费:42w
Designer Style / 类型:全案设计+施工 Designer Agency / 团队:成都宏福樘设计 Address / 地址:成都 · 正荣润锦府
Area / 面积: 137㎡
Style / 风格: 现代极简
Price / 花费: 42w
Designer / 设计师: 韩枫
Design Type / 类型: 全案设计+施工
Design Agency / 团队: 成都宏福樘设计
Address / 地址: 成都·正荣润锦府
男业主身为舞者,对空间有着明确的功能诉求。设计以黑白灰定调冷静的底色,需要一间多功能房同时承载日常练舞与临时办公的双重角色。
整体以灵活布局回应个体需求,开放公区,玻璃隔断引入光线并界定边界,开放与私密多元切换。练舞时,移动镜面墙用于动作校正。生活中,移门向左右两侧延伸,与相邻区域产生视觉与动线上的联动。


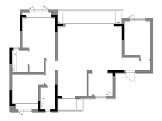
设计改造
1. 景观阳台纳入客餐厅,扩充内部面积
2. 拆除厨房、紧邻空间墙体,设计可开合移动玻璃门,多元使用场景
3. 一间卧室纳入景观阳台,改造为多功能空间
4. 主卧加入玄关隔断,优化布局
玄关


客厅





餐厅



厨房



书房



主卧




软装清单
对比图