成都 · 建发央玺 | 川屿 | 462㎡
Area / 面积:462㎡ Style / 风格:现代 Style / 户型:四室两厅 Price / 花费:200w
Designer Style / 类型:全案设计+施工 Designer Agency / 团队:成都宏福樘设计 Address / 地址:成都 · 建发央玺
设计呈现

本次改造为五口之家打造现代亲子宅,在喧嚣的城市生活中,能够回归自我、亲子陪伴的时间显得尤为珍贵,他们希望,家的模样不止为生活而存在,更应该寄托精神与审美,在生活轨迹的描摹下逐渐呈现一个有秩序、通透自由的乌托邦。
原始3层空间,布局较为零散,从居者的生活动线、习惯及审美出发,梳理内在秩序,构筑一个完全回归自我的精神场所。公区打造开放、自由氛围,由材质、色彩、光影的变化强调出1楼与-1楼的属性差异,2楼作为私区完全独立,静谧。由布局到陈列,应景而变,物成为承载生活与精神的载体,于喧嚣中寻得宁静,回归理想的自洽状态。
家所承载的内容,注定其将以不被定义的模样呈现。由功能属性的转换定义氛围,从原木、石材的自然温馨,到黑白灰配色下,金属、镜面材质碰撞出未来感,每个空间赋予个性呈现。步入居所那刻,回归的松弛感油然而生,逐渐卸下疲惫,找回自我。
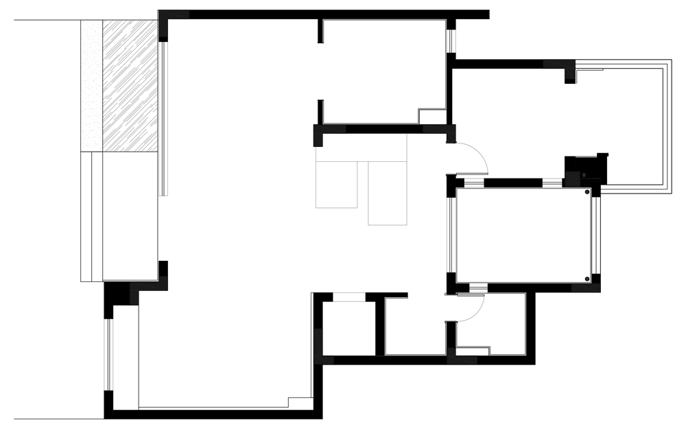
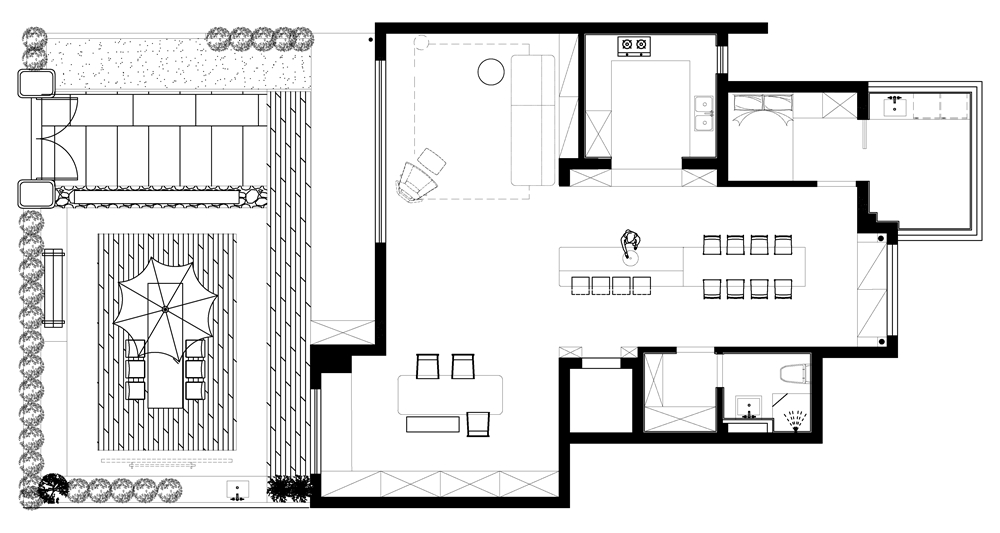
户型改造




户型问题
1. 1楼原始空间布局较为零散,动线冗长,影响居住体验。
2. -1楼次卫面积狭窄,影响使用体验。
3. 2楼原始布局零散且不够规整,无储物规划,使用体验感差。




改造思路
1. 1楼拆除墙体,打造开放式公区,改换厨房门洞位置,优化生活动线,优化居住体验。
2. -1楼拓宽卫生间使用面积,满足洗漱、如厕、淋浴功能,提升使用舒适度。
3. 2楼优化布局,拆除走廊墙体,改造为多功能休闲区。
4. 拆除景观阳台隔墙,一半阳台面积纳入儿童房,新建储物柜,打造为满足收纳、休憩的独立卧室。
5. 改换儿童房门洞方向,增加洞洞板,优化收纳功能。
6. 规整布局,将部分走廊、阳台面积纳入,增加使用面积,增强采光,扩大衣物储物设备,打造舒适体验,主卧改造为满足休憩、收纳、洗漱、如厕、泡澡的舒适大套房。
客厅



石材与原木穿插,简约的几何呈现,透过光影流转,呈现真实质感,空间氛围由此悠远宁静。开放空间,家居围合出社交场所,空间与人物的叙事交织,营造出舒缓的生活节奏,轻松、自在。




当被赋予功能时,空间便成为存放记忆的盒子,一个人的平淡惬意,三两人的欢乐趣味,无论是阅读、赏景,都能在平淡中品出诗意。
餐厅





餐厅是情感交融的最佳场所,以原木材质塑造温馨底色,光线由间隙穿过、镜面反射,映射出温润之韵。超长岛台延伸出多元生活方式,去互动、交流、享受,感受烟火气息下的治愈时刻。
厨房

改换厨房门洞方向,优化生活动线,黑与白的简洁呈现,空间干净、通透,心绪逐渐沉浸,专注于一餐一饮。
卫生间

卫生间满足洗漱、如厕、淋浴需求,纯粹的空间基调下,柔和的光影呈现,营造出舒缓的洗漱氛围。
多功能休闲区





挑空格局给予居者独一无二的开阔体验,当自然光线于空间流动,在此的生活场景愈发灵动。黑与白的色彩对比,将视线聚焦,皮质、石材,极富质感的材质,让居者在真实的体验中保持对生活的感知。




空间的呈现是居者对生活独一无二的诠释,渐变材质与星空为空间增添了一份自然意趣,暗黑色调营造沉浸氛围,当光影潜藏,宁静的氛围缓缓沉淀,居者终将回归自我中获得慰藉。
茶室

在追寻传统文化中获得宁静,黑白空间中点缀绿意,通透而充满生机,随着茶香的缓缓释放,那份悠远淡然的氛围也随之弥漫。
公卫

扩充卫生间使用面积,完整洗漱、如厕、淋浴功能,为居者提供舒适、惬意的洗漱体验。
健身房





镜面与金属材质凸显精致的审美趣味,弱化空间隔阂形成感知的延伸,柠檬黄灯光点缀氛围,唤醒活力,在运动中找回属于自己的节奏。
衣帽间

生活的格调延伸于此,开放格与储物柜并存,每一个被收纳的器物都承载着品味与喜爱,在此陈列、展示,时光轨迹中,逐渐充盈,尽兴自我。
走廊休闲区




原始走廊空间拆除墙体后,协调布局,打造为一个多功能休闲区,以玻璃材质实现内外空间的互动,别具趣味。松花黄、笋绿点缀出童趣本色,空间进行留白,交予孩子玩耍创造,便成为这里最生动的生活画面。
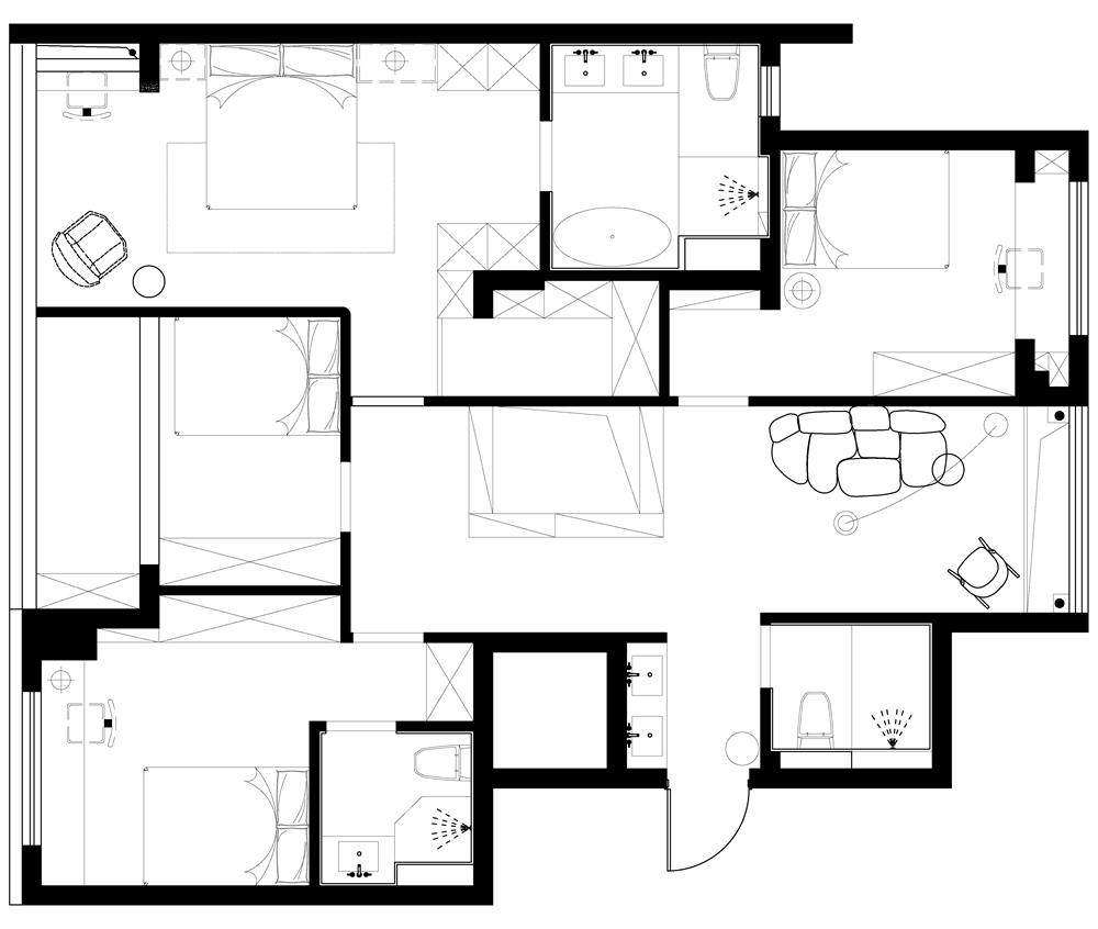
主卧



阑夜、余白,极致对比中强调出现代韵味,几何体块分割,比例穿插间丰富空间视觉,舒适尺度下延续内在秩序,生活被惬意填满,便能消弭疲惫与平淡。

石材赋予空间纯粹、通透、写意,格局的协调将生活画面具象,卸除疲惫与浮尘的每一刻,都是在回归自我,在放松沉静得到治愈。
儿童房


奶油基调铺陈一室温馨恬静,多元色彩增添活力气息,卡通元素装点出可爱氛围,定制开放格、洞洞板,将这里交给孩子去发挥创造与想象,每个物件都被赋予含义,别有意趣。

卫生间满足基础使用需求,上方嵌入橘色透明材质,打破单调感,引入光线,营造出温馨氛围。
儿童房


黑白灰色调穿插,营造沉稳气息,克莱因蓝明朗迷人,带来丰富的视觉层次和独特的家居体验,定制展示架和玻璃柜,摆放上心爱的物件,强调出个性化空间氛围。
儿童房


松灰色块丰富视觉层次,简约纯粹,家居以笋绿、碧青、宁黄点缀出活泼、明亮氛围,空间整体呈现出充满童趣的空间感受。