成都 · 麓山国际 | 与雾 | 190㎡
Area / 面积:190㎡ Style / 风格:混搭 Style / 户型:三室两厅 Price / 花费:85w
Designer Style / 类型:全案设计+施工 Designer Agency / 团队:成都宏福樘设计 Address / 地址:成都 · 麓山国际
设计呈现

在高楼中,哪怕被钢筋铁泥包裹,被快节奏的生活裹挟,也束缚不住向上的生命力。渴望以色调、材质筑就自然场域,重新定义生活的节奏,在与空间共处中,找到最为理想的自洽状态。
从居者的需求出发,重构空间秩序,公区通透灵活,私区有序松弛。白调纯粹,蓝调静谧,以手工砖、原木、光影打造生活质感,让每个角落都生长着自然诗意。当空间成为生活的协奏曲,每个日常瞬间都藏着怦然心动的可能。
空间是理想生活的呈现,冷暖色调的对比中,将自然的静谧、悠然沁入每一寸角落,每一次接触,都是生活与精神的契合,在寻常中获取治愈的力量。
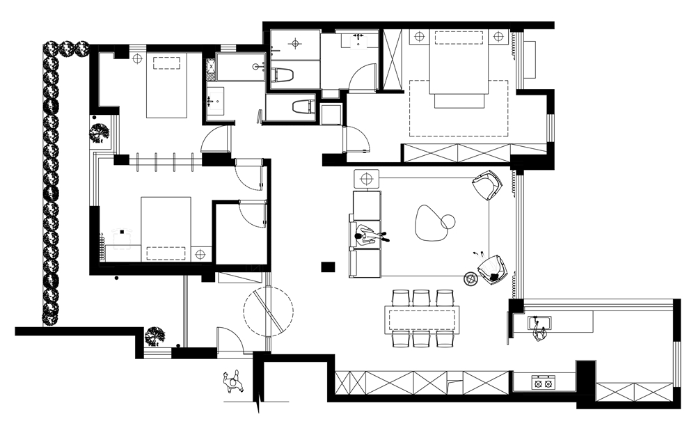
户型改造

户型问题
1. 原始布局不够规整且空间零散,空间利用率低。
2. 原始厨房面积较窄,影响使用体验。

改造思路
1. 拆除墙体,打通厨房和生活阳台,增加采光。
2. 规整主卧布局,改造为集休憩、收纳、洗漱一体的主卧套房。
3. 新增隔断,将一间次卧分隔为两个房间使用。
玄关



加入一扇转轴门,可开可合,多元玄关功能属性,品蓝色与檀褐色,将冷调的静谧与暖调的温馨融合,让空间镌刻着自然诗意,惬意松弛的氛围,足以清除纷扰。

一方静谧角落,回归朴实,感知风声、温度、光影,在感受被自然照拂中找到真正的松弛,那一刻仿佛脱离纷扰,回归自我。
客厅



以纯粹的白保留空间故事性,蓝调深浅中调和出宁静、悠然氛围,摒弃传统布局,克制的家居与色调点缀,将功能与美感融合,彰显居者的审美情调,当人与空间对话,于时光中留下诗意篇章。
餐厅





品蓝色沉稳静谧,与木色相辅相成,结合原木材质温润的质感,打造出闲适的空间氛围。家居融入圆润的线条,兼具功能与美学,角落点缀一株绿植,散发自然生机,平淡的生活亦有雅致情调。
厨房


厨房与生活阳台连通,空间更显开阔通透,将自然引入室内,四时窗景,烹煮佳肴,室内室外皆成风景。
主卧



烟墨、品蓝、宝蓝,来自自然的色彩为心灵带来平和,能化解一切焦虑。带有人文风情的点缀,一冷一暖中,为空间注入艺术气息,在可观可感的生活体验中,引导居者丰盈内心。
主卫


卫生间干湿分离,满足洗漱、如厕、淋浴需求,打造舒适体验。枣褐色、品蓝色,以深色调营造沉浸式洗漱体验,也引导居者在感知自然中,自然放松身心。
次卧



新增转轴门形成隔断,空间氛围灵活切换。烟墨色块点缀,营造沉静的休憩氛围,步入式衣帽间集收纳展示于一体,上方嵌入透明材质,让光线进入,形成空间之间的互动,增添生活趣味。
儿童房


儿童房洒蓝、海涛蓝与柠檬黄,色块碰撞,活力俏皮,家居造型简约而不失精致感,打造出一个充满个性与创意的成长空间。
次卫

次卫满足洗漱、如厕、淋浴、泡澡功能,使用水磨石材质,为空间沁入海洋气息,洗漱间宛如徜徉于自然,让日常洗沐化作与自然共鸣的疗愈仪式。