成都 · 保利和光逸境 | 影序 | 200㎡
Area / 面积:200㎡ Style / 风格:现代风格 Style / 户型:四室两厅 Price / 花费:90w
Designer Style / 类型:全案设计+施工 Designer Agency / 团队:成都宏福樘设计 Address / 地址:成都 · 保利和光逸境
Area / 面积: 200㎡
Style / 风格: 现代风格
Price / 花费: 90w
Designer / 设计师: 江艳丹
Design Type / 类型: 全案设计+施工
Design Agency / 团队: 成都宏福樘设计
Address / 地址: 成都·保利和光逸境
以纯净的线条与克制的色调为基础,巧妙融入金属、玻璃等元素,与温润的木地板形成层次分明的碰撞。兼顾功能与美学的布局,既满足了两人一猫的生活需求,又通过材质间的平衡营造出轻盈而精致的氛围。
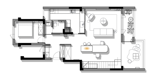
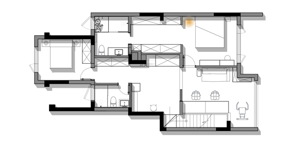
设计改造


1F
1. 玄关设计可开合玻璃隔断,空间独立又融合
2. 厨房与生活阳台合并,扩充使用面积后另改动线,紧密互动关系
3. 景观阳台一部分纳入,改造为内部休闲区域
4. 更改楼梯位置,优化空间的采光与通风


2F
1. 将原始楼梯、次卧位置进行合并调整,将其改造为可开合书房以及休闲区域
2. 修整主卧内部结构布局,便捷动线,满足日常使用需求
玄关



客厅




餐厅




厨房




休闲区




楼梯




二楼多功能区






主卧






软装清单

对比图
