成都 · 聚亿熙悦府 | 蕴色方庭 | 130㎡
Area / 面积:130㎡ Style / 风格:复古混搭 Style / 户型:四室两厅 Price / 花费:40w
Designer Style / 类型:全案设计+施工 Designer Agency / 团队:成都宏福樘设计 Address / 地址:成都 · 聚亿熙悦府
Area / 面积: 130㎡
Style / 风格: 复古混搭
Price / 花费: 40w
Designer / 设计师: 许成杰
Design Type / 类型: 全案设计+施工
Design Agency / 团队: 成都宏福樘设计
Address / 地址: 成都·聚亿熙悦府
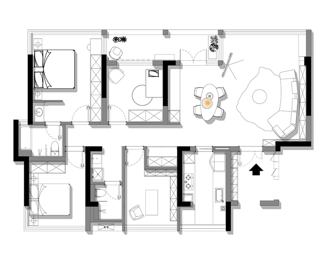
通过精细化布局,增强储物效能,同时赋予每处空间鲜明的属性。保留阳台与露台花台,引入自然光影与绿意,让生活与自然共生。跳跃的鲜亮色彩点缀其间,营造活力盎然的氛围,诠释屋主对生活的热情与向往。
设计改造


1. 将餐厅与阳台隔墙拆除,改造为玻璃折叠门,使客餐厅最大化保证与外部自然的充分接触
2. 厨房与原始生活阳台合并,扩充内部使用空间
3. 次卧与阳台合并后退,改造为一间储物库+独立书房
4. 卫生间与阳台合并后退,干区释放于外部,并将家政区融合于此
5. 主卧与儿童房皆与紧邻阳台合并,扩充空间面积
客厅







餐厅





厨房

书房


主卧






软装清单

对比图
