成都 · 璟悦天著 | 艺间 | 285㎡
Area / 面积:285㎡ Style / 风格:混搭 Style / 户型:独栋别墅 Price / 花费:100w
Designer Style / 类型:全案设计+施工 Designer Agency / 团队:成都宏福樘设计 Address / 地址:成都 · 璟悦天著
设计说明

生活从来不设限,居者期望在平淡的日子中,家是一个容得下平淡也承载得起精神的栖息地。通过色调与多元材质形成对比,打造一个兼具故事性与艺术张力的质感场域。
基于原始格局,未进行过多调整,通过规整布局、功能分配构筑一个有序的生活框架,同时预留了场景延伸的可能性。空间以生活为基础,美感为延伸,水泥肌理与自然原木质感对比,粗犷中点缀温柔气息,绛红色、宝石蓝等色彩碰撞成为视觉主角,传递出别具一格的生活和审美理念。
空间的呈现往往与人的生活理念内外呼应,以此成为居者回归生活本质的载体。
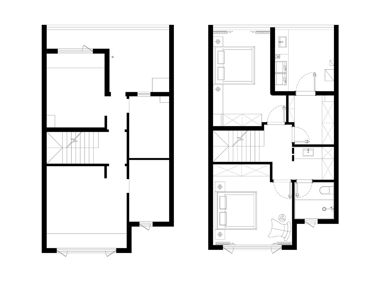
户型改造





户型问题
1. 原始布局无储物规划,不满足日常使用需求。
2. 3楼原始布局不够规整,影响空间利用率。
改造思路
1.2楼临走廊卫生间干区外置,优化使用体验。
2.将一间次卧改造为储物间,与生活阳台合并为家政区使用,改换门洞位置,优化生活体验。
3.部分阳台面积纳入次卧,增加使用面积和通透感,改换门洞位置,纳入部分走廊空间,优化生活动线。
4.规整3楼卫生间布局,完整使用功能。
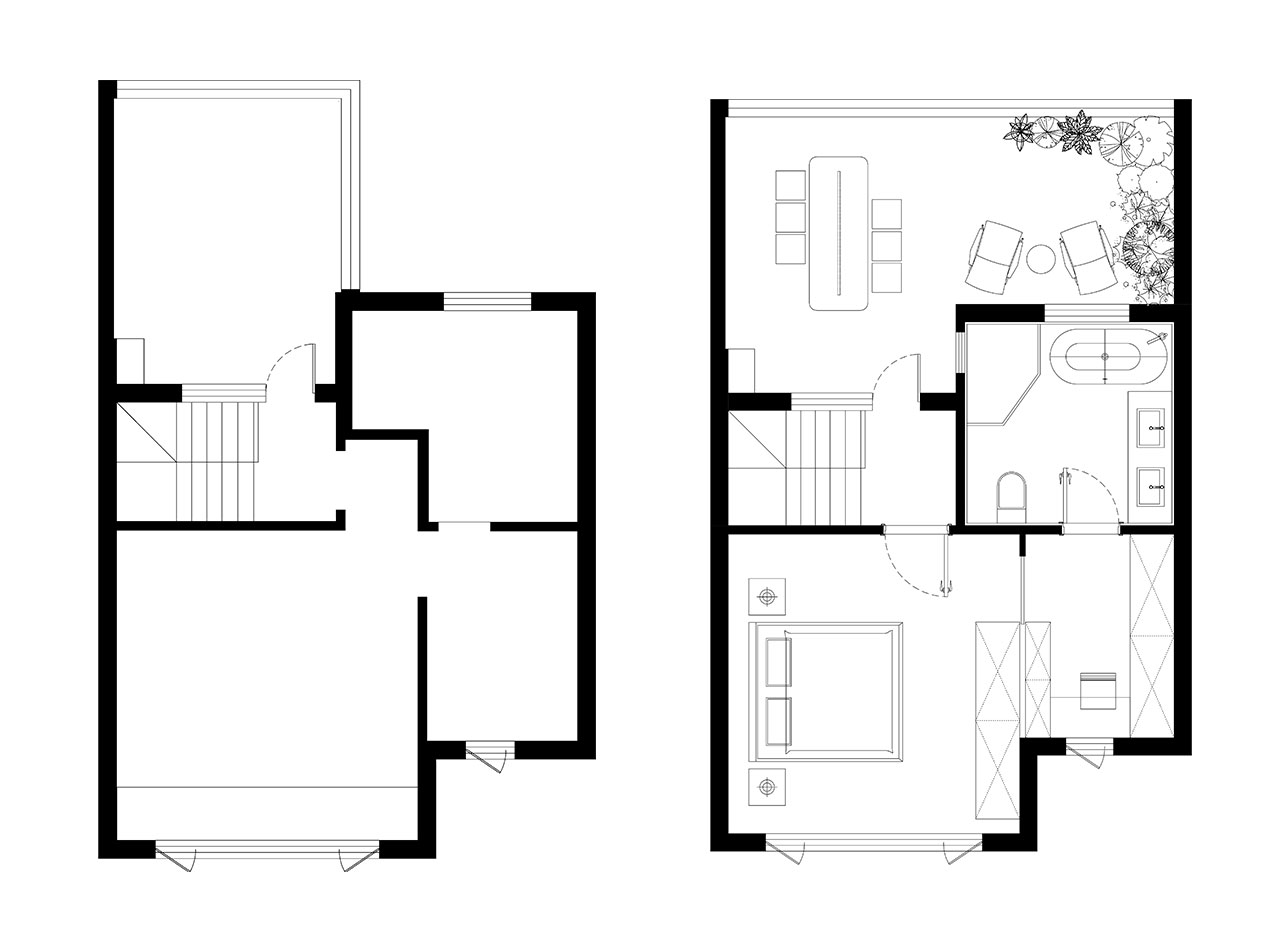
花园


花园小径将视线引入归家路途,这一方小天地,是逃离喧嚣的秘境。闲时品茶观云,偶有鸟鸣添趣,让自然疗愈身心。休闲娱乐,给予生活最惬意的诠释。
客厅



水泥与原木的肌理对话,构筑刚柔并济的客厅美学。金属冷冽、皮质醇厚、木纹温润,材质碰撞间迸发原始张力;绛红、宝石蓝、松花黄跳跃点缀,如艺术笔触激活空间情绪。整墙书卷取代电子浮光,让思想沉静生长。这里既是沙龙聚会的灵感场,亦是独处时的精神洞穴。
餐厅



金属的冷冽、玻璃的通透与原木的温润,在光影间奏响材质的三重奏。当现代理性遇见自然诗意,连寻常三餐都滋养出仪式感。绛红、宝石蓝,点染出艺术的涟漪。这里不仅是味蕾的驿站,更是美学的展场,每一场景都是生活写就的抒情诗。
厨房

原木柜体营造空间暖意,阑夜色、瓷白与宝石蓝按比例分布,搭配手工砖的肌理,让每一次烹饪都成为有仪式感的创作。这里调和的不只是五味,更是对日常的诗意注解。
次卧

水泥肌理与纯白墙面碰撞出静谧底色,绛红与宝石蓝如跳动的音符,为空间注入艺术生命力。在粗犷与精致、沉静与活力之间,找到独属于自己的平衡美学。
卫生间

干区外置,优化使用体验,粗犷石材碰撞冷冽镜面,刚柔并济间诠释空间美学,在实用中注入野趣,让日常洗漱也成为唤醒感官的艺术仪式。
多功能区






同样使用水泥肌理与纯白营造自然静谧的空间基调,自由动线串联起观影、游戏与休闲场景,灯光在肌理墙面投下温柔光晕,氛围愈发沉浸,一张编织地毯将人文温度悄然注入。在静谧与跃动的平衡中,诠释生活本该拥有的从容与热烈。
工作区




绛红色成为主角,指引视线,顺着楼梯蜿蜒而上,牵引脚步踏上私密的工作之境。独特的结构巧妙区隔喧嚣,灯光在水泥肌理上晕染出深邃光域,让思考沉入静谧。转角处暗藏惊喜,被墙体温柔环抱的休闲角落,一束暖光落下,仿佛待在这里就能远离喧嚣。
儿童房


纯白与水泥肌理围合出静谧的成长天地,留白处盛满想象。绛红、湖水蓝与竹绿悄然流淌自然气息。在宁静底色中,藏匿着活泼生机,让每个夜晚都浸润温柔,每个清晨都焕发新趣。
次卧

明快的柠檬黄墙面如阳光倾泻,瞬间点亮休憩空间。黑色线条利落勾勒几何韵律,凝夜紫点缀趣味。温润原木地板平衡视觉温度,在活泼与宁静间找到完美支点。
卫生间



外置干区以通透设计实现空间对话,三分离布局兼顾功能与舒适。花砖与原木碰撞出温暖感,内部纯白手工砖与几何花搭配,营造清爽沐浴氛围,让日常洗漱也成为唤醒感官的精致仪式。
主卧




原木的温润与水泥的粗粝在此相遇,奶油黄与木色在几何拼接中彰显艺术品味,绛红色以热情的姿态回应生活。独立衣帽间以柜体巧妙区隔,临窗梳妆台,伴着晨光,法蓝色单椅与金属材质跳脱俗常,为生活融入意想不到的趣味。
主卫



手工砖与天然石材围合出沉浸式沐浴场景,绛红异形镜面如艺术品跃然墙面。金属与粗粝石材质感对话,在黑白底色上勾勒戏剧张力。这里不仅是功能容器,更让日常洗漱升华为一场感官艺术展。
阳台


花园与自然相接,树影婆娑间滤去尘嚣。晨露未晞时独享清茶,暮色四合时笑谈围坐,放慢步调,生活本该这样,不慌不忙,自有诗意。