成都 · 保利湖光里院 | 筑间 | 405㎡
Area / 面积:405㎡ Style / 风格:现代 Style / 户型:别墅 Price / 花费:180w
Designer Style / 类型:全案设计+施工 Designer Agency / 团队:成都宏福樘设计 Address / 地址:成都 · 保利湖光里院
设计说明

空间呈现不应是强加于场地的突兀表达,而是行为、理念、美学的巧妙融合。居者希望居住空间没有过度堆砌,而是以简约的线条、纯粹的材质与精妙的布局融合,铸就一个松弛有度、意韵丰富的精神场域。
从居者需求出发,通过搭建、重构空间布局,优化生活动线。以云母白为空间基调,弧形造型强调结构,更为融合包容。原木、石材铺陈自然韵味,玻璃、亚克力等透明材质营造轻盈之感,桃夭、柔蓝、天缥、丁香等色彩点缀,于简约中创造丰富,平淡的生活亦盛放万千想象。
留白既呼吸,盛放万千想象,创造一个自然松弛的艺术馆,延续生活与诗意。
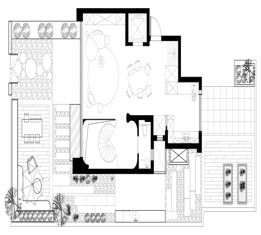
改造说明



户型问题
1. 1楼原始布局较为零散,不满足日常使用需求。
2. 2楼原始布局不够规整,空间利用率低。




改造思路
1. -1楼新建墙体,增设柜体,增强储物、洗漱功能,优化使用体验。
2. -1楼搭建夹层,改造为满足学习、玩耍的多功能空间使用。
3. 1楼规整布局,改换楼梯位置和厨房门洞方向,优化生活动线。
4. 2楼改换楼梯位置后,拓展主卧使用空间,改造为满足休憩、收纳、洗漱为一体的舒适套房。
5. 拆除墙体,次卫干区外置,优化洗漱体验。
-1楼玄关

以叶片形态设置隔断巧妙划分空间,顶部波浪线条流转,勾勒自然韵律,提升空间趣味。新增柜体收纳琐碎,于细节处安放生活格调。石材肌理质感高级,桃夭色墙面漫溢温柔,光影下材质与色彩对话共鸣,归家即享浪漫仪式感。
-1楼客厅





空间以云母白铺陈温润基底,自由模块沙发、单椅、茶几,给予休憩、玩耍、陪伴充分的留白空间,几何形态达成功能与审美一致。桃夭、天缥、朱樱、杏仁黄点缀成为醒目的装饰性语言,在日常生活中无声形成与空间美学的对话,光影游走之隙,意境无限生长。
-1楼多功能区




依原始层高巧妙搭建,开辟一处学习与玩耍共生的自由小天地。桃夭、葱倩与宝蓝碰撞,激活空间盎然生机,光线温柔漫洒,学习区静谧专注。玩耍区弧形壁龛似童话藏宝洞安放天真畅想,这里不仅是孩子的乐园,更是创造力自由生长的梦幻领地。
-1楼卫生间

手工砖流转温润光泽,让日常盥洗亦成艺术仪式。柔蓝一体台盆静谧优雅,异形镜面折射灵动视觉,悄然点亮空间趣味。光影柔和漫洒,勾勒出静谧一隅。在这里,每一次洗漱都是身心放松的精致时刻。
楼梯


旋转楼梯如同灵动的舞者展现优雅姿态,纯白曲面化作反射光影的弦乐器,蜿蜒而上,便会自然地被纯粹的气场包裹,沉浸、享受,触发深邃而宁静精神回响。
客厅





云母白的空间底色与石材、原木天然的纹理与触感,沉淀宁静氛围,无声注入一股松弛的气息。模块沙发、单椅、茶几,自由组合成满足休憩、社交的精神场域,弧线引导视觉,光影间明晰结构感,人在其中闲坐、行走、对话,生活之外,意境生长。
餐厅




一盏灯温柔界定用餐的烟火领地。餐桌、餐椅与吊灯以简洁几何形态打造现代简约美学。丁香色、水华色悄然点缀,为日常注入灵动意趣,三餐时光,于此盈满优雅与活力。
厨房


空间宽裕,动线自如流转,原木天然温润点缀,视觉清爽温馨。这里不为浮华,每一次翻炒蒸煮,都在舒缓有序中自然发生。
公卫


布局紧凑却高效有序,半墙手工砖铺展,勾勒细腻立体层次。原木点缀温润视野,简约之中藏尽巧思,每一次使用都成为舒适而便捷的温暖仪式。
花园






把四季装进院子,打造一处安宁场域。春看花、夏听风、秋观叶、冬煮茶,四季更迭,围合一方静谧,聚餐、休闲、玩耍,闲适与雅趣自在蔓延,每一刻皆是与自然共鸣的恬淡馈赠。
主卧



改换楼梯位置后,主卧空间得以拓宽,定制柜体有序延伸,收纳从容。临窗梳妆区被柜体温柔环抱,形成专注而舒适的一隅。浅色调铺陈宁静基底,多巴胺色彩悄然跳跃,每一处细节,皆是对舒适与趣味的深情告白。
主卫


纯净底色铺陈宁静氛围,简约的设计语言带来治愈之感抚平日常繁琐。每一次洗漱、沐浴,皆成沉浸式的治愈仪式,功能与美学的平衡在此悄然达成。
儿童房


笋绿漫溢,疗愈身心,这里不仅是安眠之处,更是自由嬉戏的小小乐园。萌趣家居与玩具错落陈列,激发无限想象,每一个角落,都藏着无忧无虑的欢笑与成长。
次卧

纯粹底色中茶棕轻缀,慵懒松弛感自然弥漫,光影悄然流转,沉淀一室静谧。
次卫


干区外置,三分离设计从容有序。手工砖叠映立体光影,异形镜面勾勒灵动视界,日常洗漱,亦成诗意仪式。