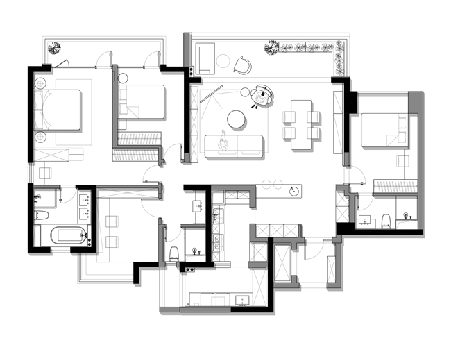
成都 · 麓湖浔岭 | 山苔 | 175㎡
Area / 面积:175㎡ Style / 风格:复古风格 Style / 户型:四室两厅 Price / 花费:30w
Designer Style / 类型:精装改造+施工 Designer Agency / 团队:成都宏福樘设计 Address / 地址:成都 · 麓湖浔岭
Area / 面积: 175㎡
Style / 风格: 复古风格
Price / 花费: 30w
Designer / 设计师: 赵婷婷
Design Type / 类型: 精装改造+全案全包
Design Agency / 团队: 成都宏福樘设计
Address / 地址: 成都·麓湖浔岭
在喧嚣止步的界域,静,成为一种内在的尺度。它并非沉寂,而是空间向心生长的力量,是呼吸与感知的同频。一束微光,一道廓影,景便随之浮现。它不再是远方的眺望,而是静心沉浸时,日常器物与光影交织的诗意。归隐于室,是一种主动的抵达。
设计改造


精装房改造,以材质焕新为起点,通过去客厅化布局重塑空间核心。定制书柜满足藏书需求,并融入西厨岛台以拓展功能与社交可能。
客厅








餐厅






西厨


次卧



书房

主卧






软装清单

对比图