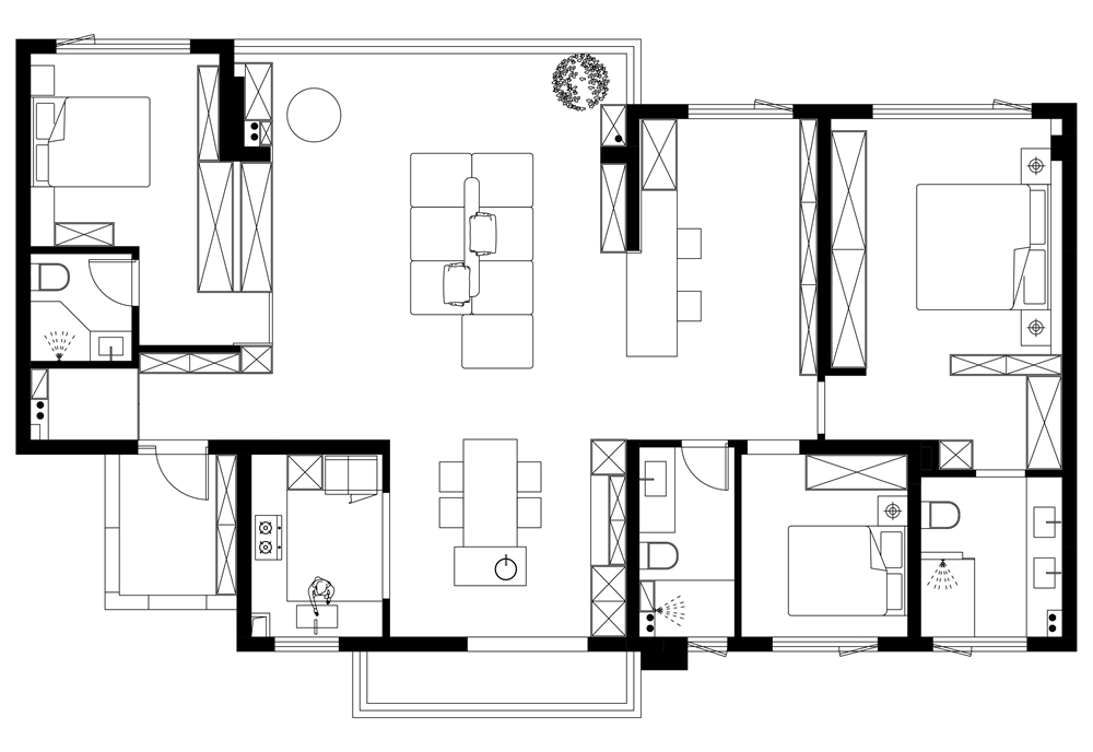
成都 · 奥园麓语ONE | 和屿 | 175㎡
Area / 面积:175㎡ Style / 风格:现代 Style / 户型:三室两厅 Price / 花费:61w
Designer Style / 类型:全案设计+施工 Designer Agency / 团队:成都宏福樘设计 Address / 地址:成都 · 奥园麓语ONE
设计说明

家是生活的栖息地,更是安定与温暖的向往。以居者的喜好、习性为切入点,把握功能与美学的平衡,打造纯粹、舒适、有序的生活空间。
重塑空间格局,完整功能,释放各个空间的功能属性,协调出更为合理与舒适的生活场景。低饱和度的色彩,营造出沉稳、优雅的氛围。以原木营造温馨自然的空间基调,材质、色彩有序排列,构建出能够品味纯粹生活的栖息之所。
简约的色调营造纯粹的感知氛围,材质、形态、光线的变化带来多元体验。沉浸下来感受,每一处都散发出惬意与疗愈的幸福感。
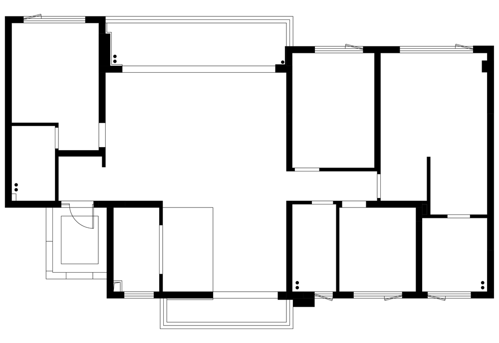
户型改造

户型问题
1.原始厨房面积狭窄,不满足日常使用需求。
2.阳台隔墙遮挡采光,不够美观。

改造思路
1.借部分餐厅面积,拓宽厨房,优化使用体验。
2.将阳台纳入客厅,增加使用面积,增强室内采光。
3.将紧邻客厅的次卧拆除墙体,改造成开放式书房,新建柜体,完整收纳功能。
4.拆除主卧隔墙,新建收纳柜,改造为集休憩、收纳、洗漱一体的舒适套房。
玄关


玄关深浅木色柜体,叠染视觉韵律。底部悬浮留空,嵌入暖光灯带,增添轻盈感与呼吸感。归家第一眼,温馨氛围悄然相迎。
客厅





将阳台纳入客厅,自然光线于空间自由流动,在此的生活场景也愈发灵动。白调铺陈松弛底色,模块沙发随性组合。素色背景墙静立,晕染安静柔和。光影轻描空间层次,细节之处,皆是对生活品质的无声告白。
书房



将一间次卧改造为开放式书房使用。无主灯设计光线均匀漫洒,营造温馨氛围。满墙柜体将生活杂物悄然隐入,实用之美亦流淌着生活温度。孟菲斯木饰面为空间注入流动的视觉魅力,功能与美学并蓄,让思绪自在生长。
餐厅


用象牙白、暗夜黑与浅木色组合出简约的开放式餐厨空间。自然纹理与极简线条碰撞打造视觉张力,在生活场景中建立人与材质、空间的对话。
厨房

“U”型布局,取、洗、切、炒形成一条流畅的动线。借助色调精准调节空间质感,协调出令人舒适的、明亮通透的烹饪空间。
主卧


简约色调赋予空间沉稳静谧的休憩氛围,悬垂吊灯将光晕揉成暖意,木质地板托起一地温柔。通顶纯白柜墙静立,隐纳万象,呼吸间感知被织物包裹的安心与松弛,享受属于自己的静谧时刻。
主卫

卫生间满足洗漱、如厕、淋浴需求,宽裕尺度,打造舒适体验。岩板赋予空间静谧气息,简约纯粹的氛围下,引导居者专注于自己的放松时刻。
次卧


素雅的基调宁静身心,让疲惫悄然沉淀。床头一张书桌简约而设,随手翻开书页,便是独处的惬意时光。侧墙一幅趣味挂画跃然而上,为沉静的空间注入灵动气息。
卫生间功能完整,温润木质点缀营造自然之感,令人关注于自身的放松与沉浸。在这里,时间都慢下来,尽情享受属于自己的惬意时光。
次卧

纯粹的色块奠定了空间干净清爽的基调。将功能精准聚焦于休憩本身,营造出纯粹无扰的氛围。细节引导感知,带来舒适而自由的体验。
次卫

次卫实现干湿分离,带来更加舒适便利的体验。一切井然有序,从容开启美好的一天。