成都 · 澜悦溪岸 | 松序 | 328㎡
Area / 面积:328㎡ Style / 风格:原木混搭 Style / 户型:别墅 Price / 花费:131w
Designer Style / 类型:全案设计+施工 Designer Agency / 团队:成都宏福樘设计 Address / 地址:成都 · 澜悦溪岸
设计呈现

在有生命力的建筑里,物成为人体验生活的媒介,体验中建立情感,转而开启深层次的精神体验。居者期望家不仅是遮风挡雨的港湾,也是足够抚慰内心的精神场域,隔绝喧嚣,细细感受身边流淌的时光。
原始布局零散且不够规整,与居者所期待的居住环境大相径庭。我们对空间进行大胆拆解,重置内部秩序与生活动线,公区打造开放通透的自由氛围,私区规整布局,完整功能。以原木、石材、光线与自然关联,打造松弛治愈的生活场景,随时光变化向内生长,构建一处安放身心、思绪的精神容器。
家是生活与精神联结的产物,将居者的审美、喜好与空间融为一体,用材质去丰盈,逐渐构造出一处富有温度与故事性的生活场域。
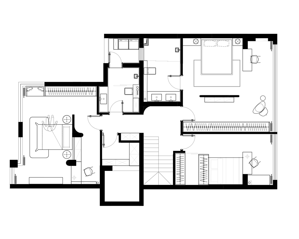
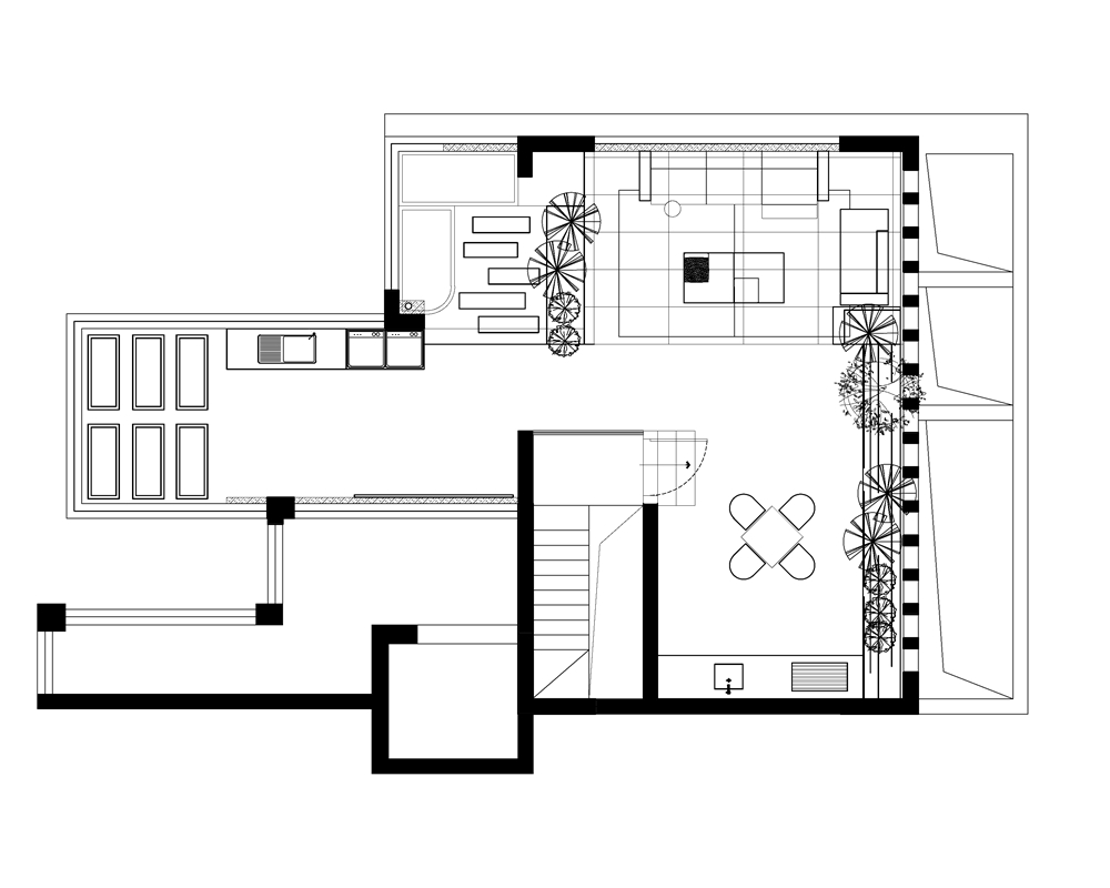
户型改造



户型问题
1. 1楼原始布局零散,空间利用率低。
2. 2楼原始布局零散且不够规整,不满足日常使用需求。



改造思路
1. 1楼拆除墙体,重新规划内部秩序,将阳台纳入,围绕承重墙打造动线自如的LDK布局,优化生活体验。
2. 景观阳台纳入后,拓宽使用面积,改造为书房使用。
3. 规整布局,将两间次卧合并为一间使用,新建柜体,完整储物。
玄关


奶油白与原木材质构成纯净场域,玻璃晶莹剔透的质感在光线的作用下将空间衬托出轻盈清透氛围。镂空的设计语言引导居者感知空间交互的趣味,当光流入,唤醒场域生命力。
客厅




客厅自由围合出岛屿般的社交场域,以素白为背景,流动的线条、材质的质感和光影的细腻铺陈赋予空间故事感,社交、阅读、观影,这里每寸呼吸都浸染着松弛美学,让日常的每帧画面都成为诗意的注脚。
餐厅






将餐厨区解构后,营造出开阔通透视野,光影勾勒出空间轮廓。原木材质大面积铺陈,宝格丽石材悄然描绘出精致的烟火日常,岛台与餐桌相接,将温情的生活场景一帧帧串联,疗愈的时光在一餐一饮中开启。
书房



从具象的风格脱离,原木、石材、壁炉,书房被渲染出自然而精致的氛围。光线倾洒,空间形成柔和的氛围,投射出时间的刻度,无论办公、阅读、休闲,沉浸其中,都是无数次与自我的交流。
卫生间

充沛的光线、舒适的尺度、与自然材质,营造舒适的洗漱体验,原木、石材、金属,不同材质凸显精致格调,打造出功能与美感兼备的生活空间。
楼梯

拾级而上,雕花在素墙上凝练成光的褶皱,宝格丽石材与花器点缀分外雅致,花影在转折处落下静默的舞。去繁存简的仪式感,让每一步登临都成为与空间的和鸣,在留白的韵律中抵达生活美学的高地。
主卧





新建隔断,实现换衣区与睡眠区的自然分隔,用简约的线条、材质本真和光线游戏构筑疗愈感,当晨光倾泻,空间变得生动起来,梳妆、休憩,私密时光始终浸润在柔和的秩序美中。
主卫


原木的温润与石材的粗粝在此碰撞,交织出自然对白,温润的材质中携带灰调,体现出理性又温馨的生活质感,实现功能与美学的平衡,舒适的氛围让每一次洗漱都变得疗愈。
次卧



次卧利用隔断增强室内私密性,同时形成纵深空间,学习区与睡眠区实现功能独立。椭形镂空破除封闭感,内外空间随着光影变化形成趣味互动。杏花色点缀藏着温柔诗意,为空间增添一份少女情怀。
次卫


干湿分区,打造舒适的洗漱体验,宝格丽石材呼应点缀,精致优雅,一株绿植为空间注入自然灵动的气息,实现功能与生活美学的完美融合
次卧


重新整合空间,满足睡眠、学习、收纳需求。摒弃繁复装饰,以原木材质构筑静谧温馨的空间基调,光线作用下烘托出治愈氛围。
杂物间

洗衣房

花园







这里既是休憩、就餐、观景的文艺场所,也是能够感知质朴生活的精神场域。这种背景下,人成为空间的主角,伴着清风、晚霞、云朵,在自然体验中完成与生活的对话,用最朴素的材质讲述最诗意的故事。