成都 · 新川臻境 | 阅时 | 168㎡
Area / 面积:168㎡ Style / 风格:现代 Style / 户型:四室两厅 Price / 花费:59w
Designer Style / 类型:全案设计+施工 Designer Agency / 团队:成都宏福樘设计 Address / 地址:成都 · 新川臻境
项目说明

空间的重构,是一次关于生活的细腻表达。居者渴望生活归于纯粹、有序,在忙碌、快节奏的当下才能守住本心,回归理想的状态。
未对原始空间结构进行调整,通过新建柜体和家居布局营造一个舒适、有序的居家环境。现代风格下,经典的黑白色调营造纯粹的感知氛围,适当融入金属、石材等丰盈感官,生活的趣味就在一次次体验中诠释、强化。
简单纯粹的色调总能让人迅速得到舒缓,材质的变化给予多元感知,人的加入让空间更富故事性,生活亦是如此,简单却不单调。
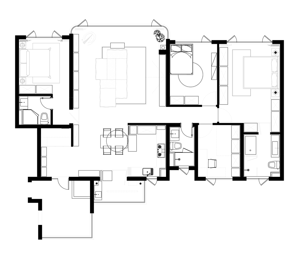
改造说明

户型问题
1. 原始空间无储物规划,不满足日常收纳需求。

改造思路
1. 新建柜体,完整储物功能,打造有序的居家环境。
玄关


经典黑与白的对立,营造简约的氛围基调,镜面材质满足功能与美学的双重作用,多元视觉感知,角落布置端景,是理性与感性的对话,亦是生活美学的无声宣言。
客厅





以纯粹的白调和出纯净场域,通过体块的穿插与布置,强调出几何美感,材质在衔接与对比中赋予空间丰富质感。家居的选择融入现代化的艺术情调,线条干净利落,同时点缀绛红色释放空间活力,简单、惬意的日常在这里一一上演。
餐厅



使用具有现代美感的家居,简约的线条,材质碰撞点缀,营造时尚前卫的空间氛围,共同演绎惬意、舒适的生活场景。
厨房


设置岛台增加操作面积,同时衔接厨房与餐厅的互动,多元生活方式。以金属材质点缀,光线折射下营造富有变化的视觉感受,赋予空间丰富质感。
主卧


纯净氛围下,人与空间自然形成对话,黑白之中点缀一幅挂画打破单调印象,植入静谧、疗愈氛围,引导居者感受情绪,逐渐舒缓、平静。
主卫



黑与白的对立强调出不同的功能属性,洗漱区以石材、金属营造独特的感官体验,富有生活质感。淋浴区以白调消解归家的疲惫,引导居者全然放松,沉浸此刻。
书房

被白色包围的空间,通透明亮,足以消解繁杂,书桌单椅宛如这一隅的精神岛屿,居于其间能够做到思绪全然沉浸。
次卧

摈弃繁复的修饰,简约的空间更能营造宁静的休憩氛围,让居者可以关注于自身的放松,当被舒适包裹,身心逐渐舒缓。
儿童房

儿童房融入原木材质,营造出一个安心、舒适、温馨的居住氛围,玩偶、吊灯等装饰元素增加童趣,家居灵活便于挪动,打造出一个可持续性的成长空间。