成都 · 越秀曦悦府 | 栖暖 | 136㎡
Area / 面积:136㎡ Style / 风格:现代风格 Style / 户型:四室两厅 Price / 花费:45w
Designer Style / 类型:全案设计+施工 Designer Agency / 团队:成都宏福樘设计 Address / 地址:成都 · 越秀曦悦府
Area / 面积: 136㎡
Style / 风格: 现代风格
Price / 花费: 45w
Designer / 设计师: 韩枫
Design Type / 类型: 全案设计+施工
Design Agency / 团队: 成都宏福樘设计
Address / 地址: 成都·越秀曦悦府
对于这对90后夫妻而言,家是理性与温情的平衡。男主人作为电子工程师,偏爱内敛实用的科技感。两人都注重整洁,希望空间色调舒缓而平和。两只猫的存在,为家中增添了几分灵动的生气。在保留三间卧室的基础上,书房与客厅通过开放互通的设计,让办公与生活自然地联结起来。既满足偶尔工作的需求,也维系着家人间随时可见的陪伴。
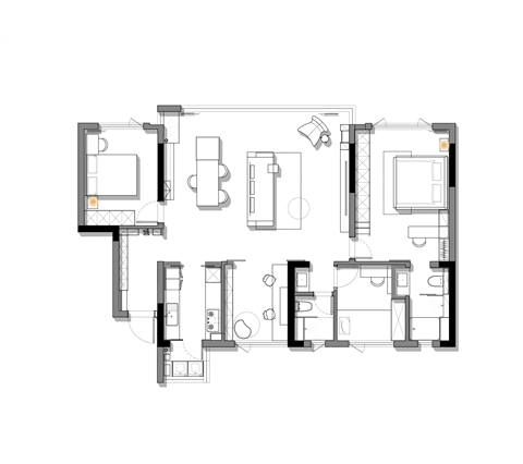
户型改造


1. 景观阳台纳入,扩充客餐厅使用面积
2. 一间卧室拆除部分墙体,设计为可开合的书房
3. 主卫向临近次卧借用部分面积,扩大使用空间
玄关


客厅



餐厅







书房




主卧






软装清单

对比图